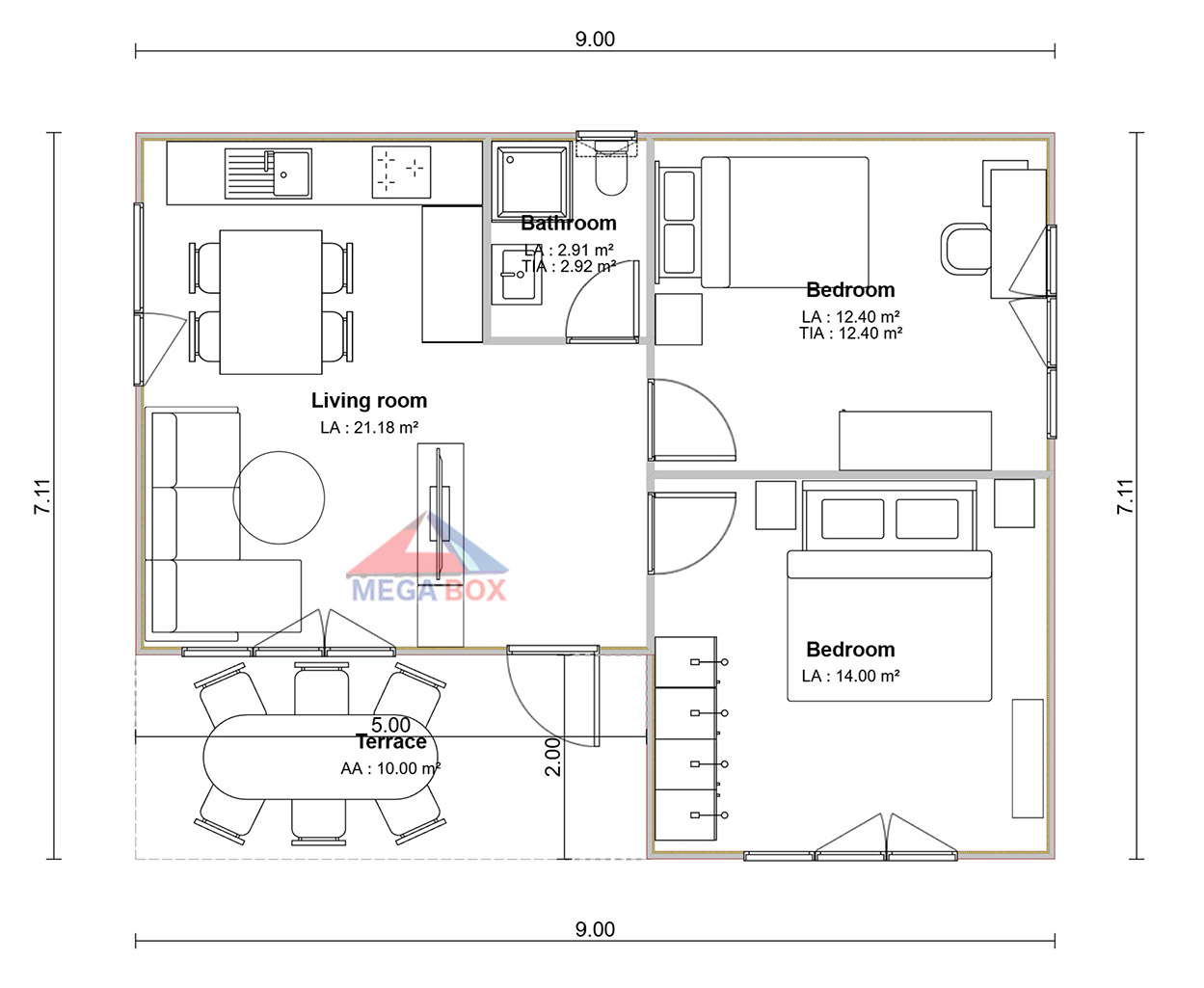
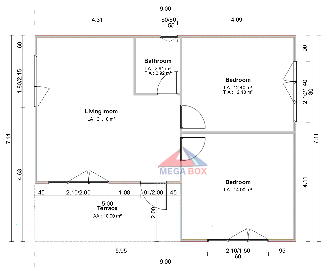
Tulip 64м2

Конструкция: Метална конструкция от стомана за заварени конструкции S 235JR

Стени: Еко термо панел 120мм от каменна вата и полиуретанова пяна с конструция.

Вътрешни стени: Щендер на стена от един пласт тип А, стандартна гипскартонена плоскост за стени и тавани с нормална влажност – цвят зелен 

Външни стени: Каменна вата, влагоустойчиви плочи,(OSB), влагоустойчива дишаща мембрана,стиропор плътна 10-ка замрежване,шплаковка,полимерна мазилка

Покрив: Метални керемиди с полимерно покритие в различни цветове/ Панел имитация на керемиди, Покривно фолио – дишаща мембрана,Таван, Минерална вата 50мм

Под: По желание на клиента 

Цена : При запитване!

бизнес партньори

бизнес партньори на мегабокс
  • Вземи оферта

    Вземи оферта